Přejít k obsahu | Přejít k hlavnímu menu

Najděte domov podle svých představ

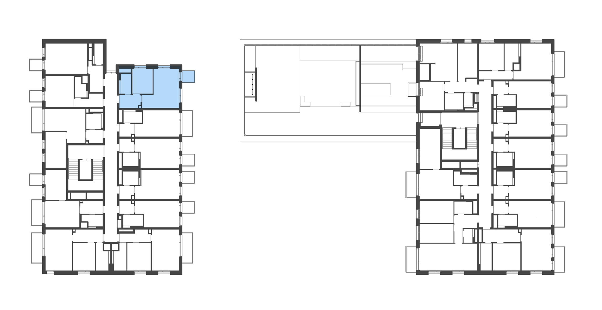
XENON

Ubytovací jednotka č. 2501
Dispozice 2+kk
Podlahová plocha 41.2 m2
Podlaží 5. NP
Orientace S, V
Cena 6 660 000
Dokumenty ke stážení:

Nebytová jednotka – ubytovací jednotka s dispozicí 2+kk a celkovou plochou 44 m² je navržena s důrazem na efektivní využití prostoru a moderní design. Nachází se v 5. podlaží a její součástí je obytná místnost s kuchyňským koutem, ložnice a koupelna se sprchovým koutem a toaletou. K jednotce náleží také balkon o velikosti 2.8 m². K jednotce je třeba zakoupit sklepní kóji a parkovací stání. Plně k dispozici jsou vám i další benefity projektu, jako jsou dvě střešní terasy, kolárna, kočárkárna a prádelna.

Cesta k novému bydlení

01

Rezervace

Rezervujte si svou vybranou jednotku.
02

Podepsání smlouvy

Podepište smlouvu a těšte se na nový domov.
03

Nastěhování

Přeberte hotovou jednotku a začněte bydlet!

Financování

01

Rezervace

Po podepsání Rezervační smlouvy je potřeba uhradit do 5 pracovních dnů rezervační poplatek ve výši 150 000 Kč, který vám odečteme z celkové kupní ceny.
02

Uhrazení zálohy

Do 14 pracovních dnů od podpisu Smlouvy o budoucí kupní smlouvě je nutné uhradit zálohu ve výši 20 % z celkové kupní ceny snížené o rezervační poplatek.
03

Doplacení kupní ceny

Do 14 pracovních dnů od vydání kolaudačního souhlasu uhradíte z vlastních zdrojů domluvenou částku a zbylý doplatek bude uhrazen z hypotečního úvěru dle termínu ve smlouvě.
04

Podepsání kupní smlouvy a předání jednotky

Po úplné úhradě kupní ceny dojde k předání jednotky.
Illust image

Buďte u toho s námi!

Stačí vyplnit kontakt a my se Vám brzy ozveme s dalšími informacemi.

Vaše zpráva