Najděte domov podle svých představ
NEON
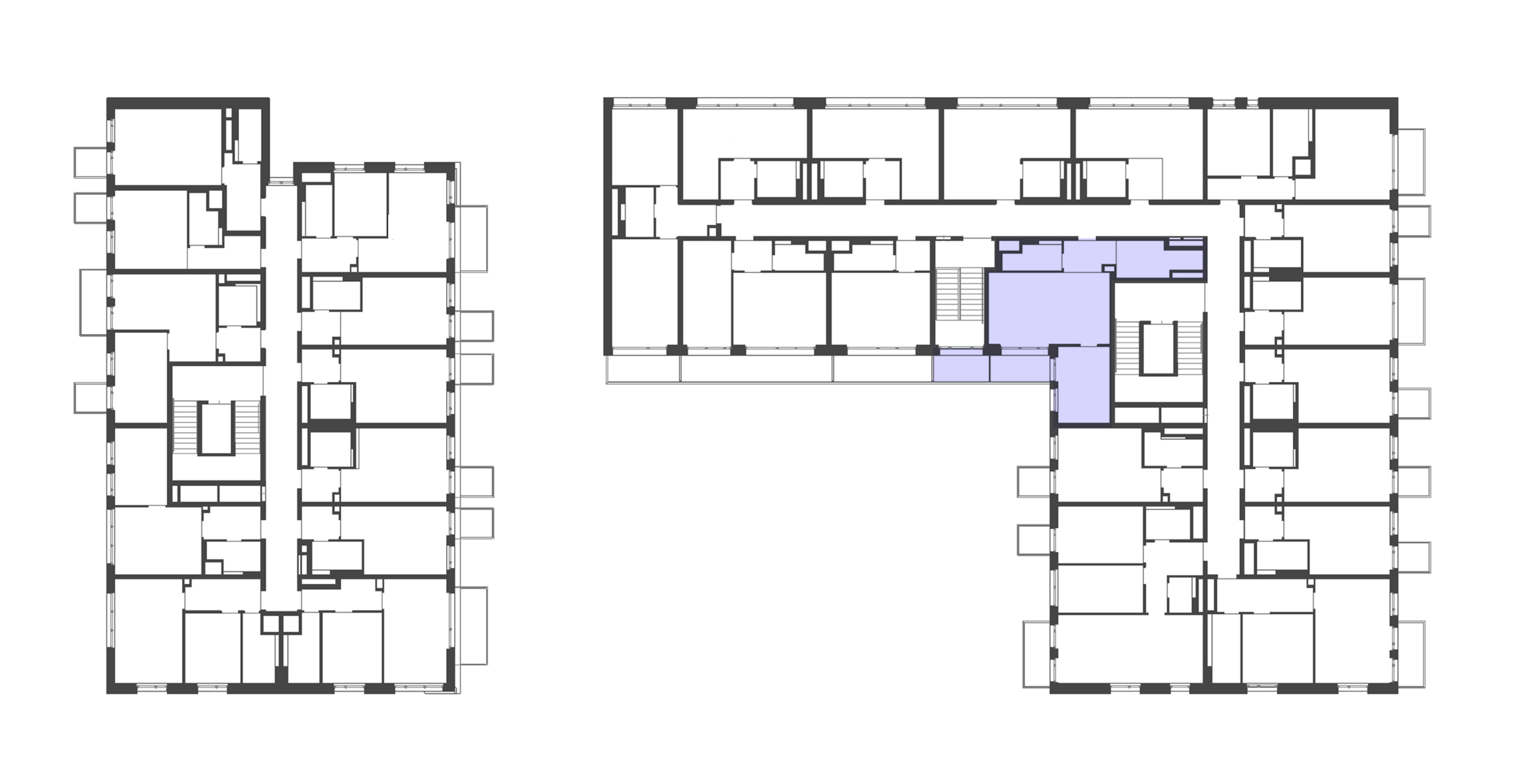
Ubytovací jednotka č. 1401
Dispozice
2+kk
Podlahová plocha
53.5 m2
Podlaží
4. NP
Orientace
J, Z
Cena
7 573 000 Kč
Nebytová jednotka – ubytovací jednotka s dispozicí 2+kk a celkovou plochou 59.1 m² je navržena s důrazem na efektivní využití prostoru a moderní design. Nachází se v 4. podlaží a její součástí je obytná místnost s kuchyňským koutem, ložnice a koupelna se sprchovým koutem a toaletou. K jednotce náleží také balkon o velikosti 5.6 m². K jednotce je třeba zakoupit sklepní kóji a parkovací stání. Plně k dispozici jsou vám i další benefity projektu, jako jsou dvě střešní terasy, kolárna, kočárkárna a prádelna.
Cesta k novému bydlení
01
Rezervace
Rezervujte si svou vybranou jednotku.
02
Podepsání smlouvy
Podepište smlouvu a těšte se na nový domov.
03
Nastěhování
Přeberte hotovou jednotku a začněte bydlet!
Financování
01
Rezervace
Po podepsání Rezervační smlouvy je potřeba uhradit do 5 pracovních dnů rezervační poplatek ve výši 150 000 Kč, který vám odečteme z celkové kupní ceny.
02
Uhrazení zálohy
Do 14 pracovních dnů od podpisu Smlouvy o budoucí kupní smlouvě je nutné uhradit zálohu ve výši 20 % z celkové kupní ceny snížené o rezervační poplatek.
03
Doplacení kupní ceny
Do 14 pracovních dnů od vydání kolaudačního souhlasu uhradíte z vlastních zdrojů domluvenou částku a zbylý doplatek bude uhrazen z hypotečního úvěru dle termínu ve smlouvě.
04
Podepsání kupní smlouvy a předání jednotky
Po úplné úhradě kupní ceny dojde k předání jednotky.