Přejít k obsahu | Přejít k hlavnímu menu

Najděte domov
podle svých představ

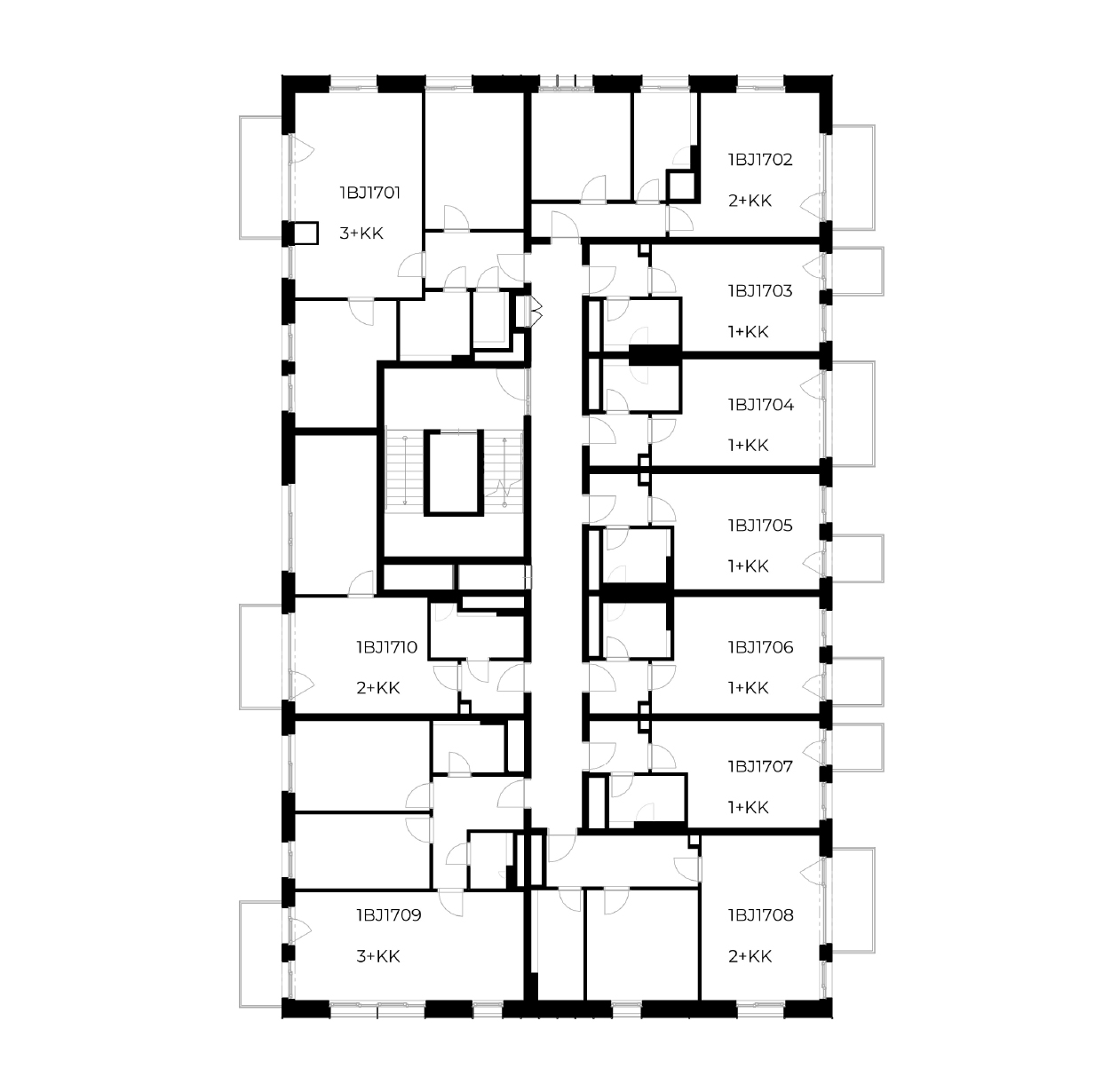
neon 7.NP

  • Byt č. 1710, plocha: 44.5 m2, dispozice: 2+kk, cena: 7 076 000 , detail jednotky
  • Byt č. 1707, plocha: 26.8 m2, dispozice: 1+kk, cena: prodáno
  • Byt č. 1706, plocha: 29.5 m2, dispozice: 1+kk, cena: prodáno
  • Byt č. 1704, plocha: 27.3 m2, dispozice: 1+kk, cena: prodáno
  • Byt č. 1705, plocha: 29.5 m2, dispozice: 1+kk, cena: prodáno
  • Byt č. 1703, plocha: 27 m2, dispozice: 1+kk, cena: prodáno
  • Byt č. 2710, plocha: 26.9 m2, dispozice: 1+kk, cena: prodáno
  • Byt č. 2709, plocha: 44.6 m2, dispozice: 2+kk, cena: 7 192 000 , detail jednotky
  • Byt č. 2706, plocha: 49 m2, dispozice: 2+kk, cena: 7 433 000 , detail jednotky
  • Byt č. 2705, plocha: 30.1 m2, dispozice: 1+kk, cena: prodáno
  • Byt č. 2703, plocha: 32.9 m2, dispozice: 1+kk, cena: prodáno
  • Byt č. 2702, plocha: 30 m2, dispozice: 1+kk, cena: prodáno
  • Byt č. 2701, plocha: 44.5 m2, dispozice: 2+kk, cena: 6 948 000 , detail jednotky
  • Byt č. 1709, plocha: 70.7 m2, dispozice: 3+kk, cena: 9 950 000 , detail jednotky
  • Byt č. 1708, plocha: 53.1 m2, dispozice: 2+kk, cena: 7 930 000 , detail jednotky
  • Byt č. 1701, plocha: 73.5 m2, dispozice: 3+kk, cena: 9 988 000 , detail jednotky
  • Byt č. 1702, plocha: 47.4 m2, dispozice: 2+kk, cena: 7 427 000 , detail jednotky
  • Byt č. 2711, plocha: 34.9 m2, dispozice: 1+kk, cena: prodáno
  • Byt č. 2708, plocha: 39.1 m2, dispozice: 2+kk, cena: prodáno
  • Byt č. 2707, plocha: 45.7 m2, dispozice: 2+kk, cena: 7 200 000 , detail jednotky
  • Byt č. 2704, plocha: 32.9 m2, dispozice: 1+kk, cena: prodáno

Ceník

Dispozice
Užitná plocha
Cena (maximální)
Budova
Příslušenství
Dostupnost
Podlaží
Budova Typ Číslo Podlaží Dispozice Orientace Příslušenství Plocha Cena vč. DPH
XENON Byt 1BJ2810 8. NP 1+kk Z Balkón 26.9 m2 prodáno
NEON Byt 1BJ1807 8. NP 2+kk Z Balkón 44.5 m2 7 208 000
NEON Byt 1BJ1803 8. NP 1+kk V Balkón 26.8 m2 prodáno
NEON Byt 1BJ1802 8. NP 2+kk S, V Balkón 47.4 m2 7 736 000
NEON Byt 1BJ1710 7. NP 2+kk Z Balkón 44.5 m2 7 076 000
NEON Byt 1BJ1707 7. NP 1+kk V Balkón 26.8 m2 prodáno
NEON Byt 1BJ1706 7. NP 1+kk V Balkón 29.5 m2 prodáno
NEON Byt 1BJ1704 7. NP 1+kk V Balkón 27.3 m2 prodáno
NEON Byt 1BJ1705 7. NP 1+kk V Balkón 29.5 m2 prodáno
NEON Byt 1BJ1703 7. NP 1+kk V Balkón 27 m2 prodáno
NEON Byt 1BJ1605 6. NP 1+kk V Balkón 29.7 m2 prodáno
NEON Byt 1BJ1606 6. NP 1+kk V Balkón 29.5 m2 prodáno
NEON Byt 1BJ1602 6. NP 2+kk S, V Balkón 47.3 m2 7 321 000
NEON Byt 1BJ1603 6. NP 1+kk V Balkón 27 m2 prodáno
NEON Byt 1BJ1508 5. NP 2+kk J, V Balkón 53 m2 7 784 000
NEON Byt 1BJ1509 5. NP 3+kk J, Z Balkón 70.8 m2 prodáno
NEON Byt 1BJ1507 5. NP 1+kk V Balkón 27 m2 prodáno
NEON Byt 1BJ1505 5. NP 1+kk V Balkón 29.5 m2 prodáno
NEON Byt 1BJ1506 5. NP 1+kk V Balkón 29.5 m2 prodáno
NEON Byt 1BJ1503 5. NP 1+kk V Balkón 27 m2 prodáno
NEON Byt 1BJ1504 5. NP 1+kk V Balkón 27 m2 prodáno
XENON Byt 1BJ2811 8. NP 1+kk Z Balkón 34.9 m2 prodáno
NEON Byt 1BJ1417 4. NP 1+kk Z Balkón 29.2 m2 prodáno
NEON Byt 1BJ1415 4. NP 2+kk J, V Balkón 53 m2 prodáno
NEON Byt 1BJ1414 4. NP 1+kk V Balkón 26.8 m2 prodáno
XENON Byt 1BJ2807 8. NP 2+kk J, Z Balkón 45.7 m2 7 316 000
NEON Byt 1BJ1413 4. NP 1+kk V Balkón 29.5 m2 prodáno
XENON Byt 1BJ2806 8. NP 2+kk J, V Balkón 50.9 m2 7 734 000
XENON Byt 1BJ2805 8. NP 1+kk V Balkón 31.2 m2 prodáno
XENON Byt 1BJ2804 8. NP 1+kk V Balkón 34 m2 prodáno
NEON Byt 1BJ1412 4. NP 1+kk V Balkón 29.5 m2 prodáno
XENON Byt 1BJ2803 8. NP 1+kk V Balkón 34.1 m2 prodáno
NEON Byt 1BJ1410 4. NP 1+kk V Balkón 27 m2 prodáno
XENON Byt 1BJ2801 8. NP 2+kk S, V Balkón 46 m2 7 167 000
XENON Byt 1BJ2802 8. NP 1+kk V Balkón 31.3 m2 prodáno
NEON Byt 1BJ1403 4. NP 2+kk J Balkón 42.3 m2 6 997 000
XENON Byt 1BJ2710 7. NP 1+kk Z Balkón 26.9 m2 prodáno
NEON Byt 1BJ1402 4. NP 1+kk J Balkón 28.8 m2 prodáno
XENON Byt 1BJ2709 7. NP 2+kk Z Balkón 44.6 m2 7 192 000
NEON Ubytovací jednotka 1BJ1408 4. NP 1+kk S - 32 m2 prodáno
NEON Ubytovací jednotka 1BJ1407 4. NP 1+kk S - 32 m2 prodáno
XENON Byt 1BJ2706 7. NP 2+kk J, V Balkón 49 m2 7 433 000
NEON Ubytovací jednotka 1BJ1406 4. NP 1+kk S - 31.9 m2 prodáno
XENON Byt 1BJ2705 7. NP 1+kk V Balkón 30.1 m2 prodáno
NEON Byt 1BJ1317 3. NP 1+kk Z Balkón 29.3 m2 prodáno
XENON Byt 1BJ2703 7. NP 1+kk V Balkón 32.9 m2 prodáno
XENON Byt 1BJ2702 7. NP 1+kk V Balkón 30 m2 prodáno
XENON Byt 1BJ2701 7. NP 2+kk S, V Balkón 44.5 m2 6 948 000
NEON Byt 1BJ1314 3. NP 1+kk V Balkón 26.8 m2 prodáno
NEON Byt 1BJ1313 3. NP 1+kk V Balkón 29.5 m2 prodáno
NEON Byt 1BJ1312 3. NP 1+kk V Balkón 29.5 m2 prodáno
XENON Byt 1BJ2608 6. NP 2+kk Z Balkón 39 m2 prodáno
XENON Byt 1BJ2607 6. NP 2+kk J, Z Balkón 45.7 m2 7 098 000
NEON Byt 1BJ1311 3. NP 1+kk V Balkón 27 m2 prodáno
XENON Byt 1BJ2605 6. NP 1+kk V Balkón 29.3 m2 prodáno
XENON Byt 1BJ2604 6. NP 1+kk V Balkón 31.7 m2 prodáno
NEON Ubytovací jednotka 1BJ1310 3. NP 1+kk V Balkón 27.2 m2 prodáno
NEON Ubytovací jednotka 1BJ1309 3. NP 2+kk S, V Balkón 47.2 m2 6 900 000
XENON Byt 1BJ2603 6. NP 1+kk V Balkón 31.7 m2 prodáno
NEON Ubytovací jednotka 1BJ1307 3. NP 1+kk S - 32 m2 prodáno
XENON Byt 1BJ2602 6. NP 1+kk V Balkón 29.1 m2 prodáno
XENON Byt 1BJ2601 6. NP 2+kk S, V Balkón 42.8 m2 6 782 000
NEON Ubytovací jednotka 1BJ1306 3. NP 1+kk S - 31.9 m2 prodáno
NEON Ubytovací jednotka 1BJ1305 3. NP 1+kk S - 31.3 m2 prodáno
XENON Ubytovací jednotka 1BJ2611 6. NP 1+kk Z Balkón 34.9 m2 prodáno
NEON Ubytovací jednotka 1BJ1302 3. NP 1+kk J Balkón 28.8 m2 prodáno
XENON Byt 1BJ2508 5. NP 2+kk Z Balkón 39.2 m2 prodáno
XENON Byt 1BJ2507 5. NP 2+kk J, Z Balkón 45.7 m2 6 907 000
NEON Ubytovací jednotka 1BJ1301 3. NP 2+kk J, Z Balkón 53.5 m2 7 461 000
XENON Byt 1BJ2506 5. NP 2+kk J, V Balkón 45.9 m2 7 237 000
XENON Byt 1BJ2505 5. NP 1+kk V Balkón 28 m2 prodáno
XENON Byt 1BJ2504 5. NP 1+kk V Balkón 30.5 m2 prodáno
NEON Byt 1BJ1203 2. NP 2+kk J Balkón 42.3 m2 prodáno
NEON Ubytovací jednotka 1BJ1217 2. NP 1+kk Z Balkón 29.1 m2 prodáno
XENON Byt 1BJ2503 5. NP 1+kk V Balkón 30.5 m2 prodáno
XENON Ubytovací jednotka 1BJ2511 5. NP 1+kk Z Balkón 34.9 m2 prodáno
XENON Ubytovací jednotka 1BJ2510 5. NP 1+kk Z Balkón 26.9 m2 prodáno
NEON Ubytovací jednotka 1BJ1212 2. NP 1+kk V Balkón 29.5 m2 prodáno
XENON Ubytovací jednotka 1BJ2502 5. NP 1+kk V Balkón 28.1 m2 prodáno
XENON Ubytovací jednotka 1BJ2501 5. NP 2+kk S, V Balkón 41.2 m2 6 649 000
NEON Ubytovací jednotka 1BJ1211 2. NP 1+kk V Balkón 27.3 m2 prodáno
XENON Byt 1BJ2408 4. NP 2+kk Z - 38.7 m2 prodáno
XENON Byt 1BJ2407 4. NP 2+kk J, Z - 45.3 m2 6 697 000
NEON Ubytovací jednotka 1BJ1209 2. NP 2+kk S, V Balkón 47.3 m2 6 818 000
NEON Ubytovací jednotka 1BJ1208 2. NP 1+kk S - 31.9 m2 v přípravě
XENON Byt 1BJ2405 4. NP 1+kk V Balkón 26.9 m2 prodáno
NEON Ubytovací jednotka 1BJ1207 2. NP 1+kk S - 32 m2 v přípravě
NEON Ubytovací jednotka 1BJ1206 2. NP 1+kk S - 31.9 m2 prodáno
NEON Ubytovací jednotka 1BJ1205 2. NP 1+kk S - 31.3 m2 v přípravě
XENON Byt 1BJ2404 4. NP 1+kk V Balkón 29.3 m2 prodáno
XENON Byt 1BJ2403 4. NP 1+kk V Balkón 29.4 m2 prodáno
NEON Ubytovací jednotka 1BJ1201 2. NP 2+kk J, Z Balkón 53.3 m2 7 330 000
XENON Ubytovací jednotka 1BJ2411 4. NP 1+kk Z Balkón 34.9 m2 prodáno
XENON Ubytovací jednotka 1BJ2410 4. NP 1+kk Z Balkón 26.9 m2 prodáno
XENON Ubytovací jednotka 1BJ2402 4. NP 1+kk V Balkón 26.8 m2 prodáno
NEON Byt 1BJ1102 1. NP 1+kk J Předzahrádka 22.5 m2 v přípravě
NEON Ubytovací jednotka 1BJ1115 1. NP 1+kk Z Předzahrádka 26.8 m2 v přípravě
XENON Byt 1BJ2306 3. NP 2+kk J, V Balkón 45.7 m2 7 046 000
XENON Byt 1BJ2305 3. NP 1+kk V Balkón 28.2 m2 prodáno
NEON Ubytovací jednotka 1BJ1114 1. NP 1+kk V - 26.6 m2 prodáno
XENON Byt 1BJ2304 3. NP 1+kk V Balkón 30.5 m2 prodáno
NEON Ubytovací jednotka 1BJ1113 1. NP 1+kk V - 29.3 m2 prodáno
XENON Byt 1BJ2303 3. NP 1+kk V Balkón 30.5 m2 prodáno
NEON Ubytovací jednotka 1BJ1112 1. NP 1+kk V - 29.3 m2 prodáno
NEON Ubytovací jednotka 1BJ1111 1. NP 1+kk V - 26.9 m2 v přípravě
NEON Ubytovací jednotka 1BJ1110 1. NP 1+kk V - 26.8 m2 prodáno
XENON Ubytovací jednotka 1BJ2311 3. NP 1+kk Z Balkón 34.9 m2 prodáno
XENON Ubytovací jednotka 1BJ2310 3. NP 1+kk Z Balkón 26.9 m2 prodáno
NEON Ubytovací jednotka 1BJ1108 1. NP 1+kk S - 31.9 m2 prodáno
NEON Ubytovací jednotka 1BJ1107 1. NP 1+kk S - 32.2 m2 prodáno
XENON Ubytovací jednotka 1BJ2302 3. NP 1+kk V Balkón 28.1 m2 prodáno
XENON Ubytovací jednotka 1BJ2301 3. NP 2+kk S, V Balkón 41.2 m2 6 396 000
NEON Ubytovací jednotka 1BJ1106 1. NP 1+kk S - 31.9 m2 prodáno
XENON Byt 1BJ2207 2. NP 2+kk J, Z - 45.3 m2 6 418 000
NEON Ubytovací jednotka 1BJ1105 1. NP 1+kk S - 31.3 m2 prodáno
XENON Byt 1BJ2206 2. NP 2+kk J, V Balkón 47.6 m2 6 997 000
NEON Ubytovací jednotka 1BJ1101 1. NP 2+kk J, Z Předzahrádka 45.8 m2 6 656 000
XENON Ubytovací jednotka 1BJ2211 2. NP 1+kk Z Balkón 34.7 m2 v přípravě
XENON Ubytovací jednotka 1BJ2210 2. NP 1+kk Z Balkón 26.9 m2 v přípravě
XENON Ubytovací jednotka 1BJ2205 2. NP 1+kk V Balkón 29 m2 prodáno
XENON Ubytovací jednotka 1BJ2208 2. NP 2+kk Z Balkón 38.8 m2 5 764 000
XENON Ubytovací jednotka 1BJ2203 2. NP 1+kk V Balkón 31.7 m2 prodáno
XENON Ubytovací jednotka 1BJ2204 2. NP 1+kk V Balkón 31 m2 prodáno
XENON Ubytovací jednotka 1BJ2202 2. NP 1+kk V Balkón 28.9 m2 prodáno
XENON Ubytovací jednotka 1BJ2108 1. NP 1+kk Z - 34.5 m2 v přípravě
XENON Ubytovací jednotka 1BJ2201 2. NP 2+kk S, V Balkón 42.9 m2 prodáno
XENON Ubytovací jednotka 1BJ2107 1. NP 1+kk Z - 26.7 m2 v přípravě
XENON Ubytovací jednotka 1BJ2106 1. NP 2+kk Z - 44 m2 5 963 000
XENON Ubytovací jednotka 1BJ2104 1. NP 1+kk V Předzahrádka 30.1 m2 v přípravě
XENON Ubytovací jednotka 1BJ2102 1. NP 1+kk V Předzahrádka 30.2 m2 prodáno
NEON Byt 1BJ1806 8. NP 3+kk J, Z Balkón 70.9 m2 10 325 000
NEON Byt 1BJ1801 8. NP 3+kk S, Z Balkón 73.5 m2 10 546 000
NEON Byt 1BJ1709 7. NP 3+kk J, Z Balkón 70.7 m2 9 950 000
NEON Byt 1BJ1708 7. NP 2+kk J, V Balkón 53.1 m2 7 930 000
NEON Byt 1BJ1701 7. NP 3+kk S, Z Balkón 73.5 m2 9 988 000
NEON Byt 1BJ1702 7. NP 2+kk S, V Balkón 47.4 m2 7 427 000
NEON Byt 1BJ1609 6. NP 3+kk J, Z Balkón 70.9 m2 9 880 000
NEON Byt 1BJ1610 6. NP 2+kk Z Balkón 44.4 m2 6 948 000
NEON Byt 1BJ1608 6. NP 2+kk J, V Balkón 53.1 m2 7 867 000
NEON Byt 1BJ1601 6. NP 3+kk S, Z Balkón 73.4 m2 9 861 000
NEON Byt 1BJ1510 5. NP 2+kk Z Balkón 44.5 m2 6 865 000
NEON Byt 1BJ1501 5. NP 3+kk S, Z - 64.6 m2 9 598 000
NEON Ubytovací jednotka 1BJ1502 5. NP 2+kk S, V Balkón 47.4 m2 7 267 000
XENON Byt 1BJ2809 8. NP 2+kk Z Balkón 44.5 m2 7 420 000
XENON Byt 1BJ2808 8. NP 2+kk Z Balkón 39 m2 6 523 000
NEON Byt 1BJ1416 4. NP 3+kk J, Z Balkón 70.9 m2 9 479 000
NEON Byt 1BJ1411 4. NP 1+kk V Balkón 27.3 m2 prodáno
NEON Byt 1BJ1404 4. NP 2+kk S, J Balkón 46.7 m2 7 154 000
XENON Byt 1BJ2711 7. NP 1+kk Z Balkón 34.9 m2 prodáno
NEON Ubytovací jednotka 1BJ1409 4. NP 2+kk S, V Balkón 47.4 m2 7 098 000
XENON Byt 1BJ2708 7. NP 2+kk Z Balkón 39.1 m2 prodáno
XENON Byt 1BJ2707 7. NP 2+kk J, Z Balkón 45.7 m2 7 200 000
NEON Ubytovací jednotka 1BJ1405 4. NP 1+kk S - 31.3 m2 prodáno
NEON Ubytovací jednotka 1BJ1401 4. NP 2+kk J, Z Balkón 53.5 m2 7 562 000
XENON Byt 1BJ2704 7. NP 1+kk V Balkón 32.9 m2 prodáno
NEON Byt 1BJ1316 3. NP 3+kk J, Z Balkón 70.7 m2 prodáno
NEON Byt 1BJ1315 3. NP 2+kk J, V Balkón 53.1 m2 7 305 000
XENON Byt 1BJ2609 6. NP 2+kk Z Balkón 44.5 m2 6 971 000
NEON Byt 1BJ1304 3. NP 2+kk S, J Balkón 46.7 m2 7 070 000
XENON Byt 1BJ2606 6. NP 2+kk J, V Balkón 47.6 m2 7 375 000
NEON Byt 1BJ1303 3. NP 2+kk J Balkón 42.3 m2 6 915 000
NEON Ubytovací jednotka 1BJ1308 3. NP 1+kk S - 32 m2 v přípravě
XENON Byt 1BJ2509 5. NP 2+kk Z Balkón 44.5 m2 6 865 000
NEON Byt 1BJ1216 2. NP 3+kk J, Z Balkón 70.3 m2 prodáno
NEON Byt 1BJ1215 2. NP 2+kk J, V Balkón 53 m2 7 105 000
NEON Byt 1BJ1204 2. NP 2+kk S, J Balkón 46.6 m2 prodáno
NEON Ubytovací jednotka 1BJ1214 2. NP 1+kk V Balkón 26.8 m2 prodáno
NEON Ubytovací jednotka 1BJ1213 2. NP 1+kk V Balkón 29.5 m2 prodáno
NEON Ubytovací jednotka 1BJ1210 2. NP 1+kk V Balkón 27 m2 prodáno
XENON Byt 1BJ2409 4. NP 2+kk Z Balkón 44.6 m2 6 586 000
XENON Byt 1BJ2406 4. NP 2+kk J, V Balkón 44.2 m2 7 074 000
NEON Ubytovací jednotka 1BJ1202 2. NP 1+kk J Balkón 28.8 m2 v přípravě
NEON Byt 1BJ1104 1. NP 2+kk S, J Předzahrádka 46.7 m2 6 899 000
XENON Ubytovací jednotka 1BJ2401 4. NP 2+kk S, V Balkón 39.7 m2 6 492 000
NEON Byt 1BJ1103 1. NP 2+kk J Předzahrádka 42.4 m2 6 992 000
XENON Byt 1BJ2307 3. NP 2+kk J, Z - 45.3 m2 6 596 000
XENON Ubytovací jednotka 1BJ2309 3. NP 2+kk Z Balkón 44.5 m2 prodáno
NEON Ubytovací jednotka 1BJ1109 1. NP 2+kk S, V - 46.9 m2 6 242 000
XENON Ubytovací jednotka 1BJ2308 3. NP 2+kk Z - 38.7 m2 prodáno
NEON Komerční prostor 1BJ1118 1. NP obchod J - 33.8 m2 ústní rezervace
NEON Komerční prostor 1BJ1117 1. NP obchod J - 42.8 m2 4 661 000
NEON Komerční prostor 1BJ1116 1. NP obchod J, V - 54.8 m2 5 968 000
XENON Ubytovací jednotka 1BJ2209 2. NP 2+kk Z Balkón 44.4 m2 prodáno
XENON Ubytovací jednotka 1BJ2105 1. NP 2+kk Z - 38.6 m2 5 721 000
XENON Ubytovací jednotka 1BJ2103 1. NP 1+kk V Předzahrádka 33.1 m2 prodáno
XENON Ubytovací jednotka 1BJ2101 1. NP 2+kk S, V Předzahrádka 44.2 m2 prodáno
XENON Komerční prostor 1BJ2109 1. NP obchod J - 51 m2 5 554 000
XENON Komerční prostor 1BJ2110 1. NP obchod J - 46.9 m2 5 107 000
NEON Byt 1BJ1805 8. NP 4+kk J, V Balkón 81.7 m2 12 180 000
NEON Byt 1BJ1804 8. NP 4+kk V Balkón 90.4 m2 13 406 000

Financování

01

Rezervace

Po podpisu Rezervační smlouvy uhradíte do 5 pracovních dnů rezervační poplatek ve výši 150 000 Kč, který vám bude započten do celkové kupní ceny.
02

Uhrazení zálohy

Po podpisu Smlouvy o smlouvě budoucí kupní uhradíte do 5 pracovních dnů zálohu ve výši 20 % z celkové kupní ceny, sníženou o již uhrazený rezervační poplatek.
03

Doplacení kupní ceny

Po vydání kolaudačního souhlasu uhradíte zbývající část kupní ceny, a to z úvěru nebo vlastních zdrojů.
04

Podepsání kupní smlouvy a předání jednotky

Po úplné úhradě kupní ceny dojde k předání jednotky.

Buďte u toho s námi!

Stačí vyplnit kontakt a my se Vám brzy ozveme s dalšími informacemi.

Zajímá mě
Vaše zpráva